申請日2015.08.20
公開(公告)日2016.01.13
IPC分類號C02F9/14; C02F11/12; C02F103/28
摘要
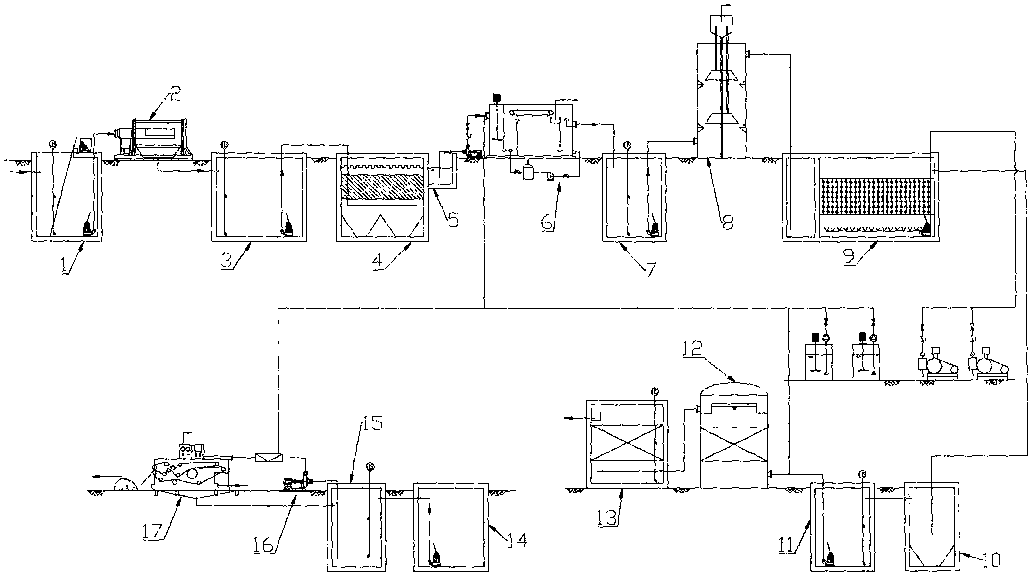
本實用新型公開了一種造紙行業專有廢水處理裝置,包括格柵井、微濾機、均質調節池、斜管沉淀池、集水井、混凝氣浮機、緩沖水池、高效厭氧反應器、生物除磷系統、二沉池、中間水池、絮凝反應罐、濾池、污泥貯存池、污泥濃縮池、污泥泵和帶式壓濾機。該裝置工藝設計合理、系統穩定,出水達標,產生的顆粒污泥會帶來效益能有效降解水中致色物質、去除水中有機物的,污水可生化性好,運行成本低。
權利要求書
1.一種造紙行業專有廢水處理裝置,其特征在于,包括格柵井、微濾機、均質調節池、斜管沉淀池、集水井、混凝氣浮機、緩沖水池、高效厭氧反應器、生物除磷系統、二沉池、中間水池、絮凝反應罐、濾池、污泥貯存池、污泥濃縮池、污泥泵和帶式壓濾機;所述格柵井的進口連接污水進水管,格柵井內的提升泵出口連接微濾機的進口,均質調節池的進口連接微濾機的出口,均質調節池內提升泵通過管道連接斜管沉淀池的進口,斜管沉淀池的出口與集水井的進口相連,混凝氣浮機外置增壓泵的進水管直接連接至集水井的池底,混凝氣浮機外置增壓泵的出水口通過管道與混凝氣浮機的進水口相連,混凝氣浮機的出口連接緩沖水池的進口;高效厭氧反應器的進口與緩沖水池內的提升泵相連,出口連接生物除磷系統進水口,二沉池的進水口通過管道連接生物除磷系統的出水口,二沉池的出水口通過管道與中間水池的進水口相連,絮凝反應罐的進口通過管道與中間水池內的提升泵相連,絮凝反應罐的出口連接濾池的進口;所述斜管沉淀池的靜壓排泥口、混凝氣浮機的排空口、高效厭氧反應器排泥口、二沉池的排泥口和絮凝反應罐的排泥口通過管道匯集進入污泥貯存池的進口,污泥濃縮池的進口連接污泥貯存池內污泥泵的出口,污泥濃縮池上清液回流口通過管道連接格柵井的進口;污泥濃縮池的出口連接污泥泵的進口,帶式壓濾機的進料泵進口通過管道混合器與污泥泵的出口連接。
2.根據權利要求1所述的造紙行業專有廢水處理裝置,其特征在于,所述格柵井內安裝有機械格柵和提升泵。
3.根據權利要求1所述的造紙行業專有廢水處理裝置,其特征在于,所述微濾機內安裝有濾網、濾篩和傳動裝置,微孔篩網固定在轉鼓型過濾設備上。
4.根據權利要求1所述的造紙行業專有廢水處理裝置,其特征在于,所述斜管沉淀池為平流式,由沉淀區、布水區、污泥區組成;斜管之間間距一般不小于50mm,斜管長一般在1.0-1.2m左右;斜管的上層應有0.5-1.0m的水深,底部緩沖層高度為1.0m。斜管下為廢水分布區,一般高度不小于0.5m,布水區下部為污泥區,污泥區設置靜壓排泥口,排泥口通過閥門和管道與污泥貯存池進口連接。
5.根據權利要求1所述的造紙行業專有廢水處理裝置,其特征在于,混凝氣浮機集進水、混凝、分離、集水、出水于一體,主要有三大系統組成:溶氣系統、刮渣系統、電控系統,混凝氣浮機上部設置有出水口、排渣口,中部設置有回流口,下部設置有進水口、三個排空口,排空口通過閥門和管道與污泥貯池進口連接;內部結構設計有穩流室、分離室、反映室、溶氣釋放室,穩流室內有折板,溶氣釋放室與分離室于一個槽體,中間隔開。
6.根據權利要求1所述的造紙行業專有廢水處理裝置,其特征在于,所述高效厭氧反應器本體為兩個圓柱形罐體結構的組合,主罐反應室由一級三相分離器、二級三相分離器分隔為三部分,分別是流化床反應室、深度凈化反應室和沉淀區,反應室中部和上部的三相分離器、反應室上部和反應器頂部的氣液分離器通過固定支架與本體連接固定,三相分離器上部有沼氣收集管和沼氣提升管;氣液分離器上連接有沼氣提升管、沼氣排放管和外循環回流管,反應室上部的鋼、不銹鋼或鋼砼制的環形出水堰固定在本體上,環形出水堰上安裝出水管;反應室下部安裝有排泥管,通過閥門和管道與污泥貯池進口連接,反應室底部安裝有進水管,反應室內底布置有進水布水管和外循環布水管;反應器部分出水作為外循環水在混合罐內與主反應罐產生的氣體混合后通過外部循環提升泵進入主反應器內。
7.根據權利要求1所述的造紙行業專有廢水處理裝置,其特征在于,所述生物除磷系統設計有進水口、出水堰口、排空口、污泥回流口和混合液回流口,進氣口,系統內部安裝有混合液回流泵、污泥回流泵、潛水推流機、啟閉機、矩陣曝氣;系統外置鼓風機,風機的風管與生物除磷系統的進氣口相連。
8.根據權利要求1所述的造紙行業專有廢水處理裝置,其特征在于,所述二沉池為斜板沉淀池,設有進水口、出水口、靜壓排泥口,靜壓排泥口通過閥門和管道與污泥貯存池進口連接。
9.根據權利要求1所述的造紙行業專有廢水處理裝置,其特征在于,所述絮凝反應罐外置兩套加藥裝置,加藥裝置由攪拌機、加藥箱和計量泵組成,分別為PAC和PAM。
10.根據權利要求1所述的造紙行業專有廢水處理裝置,其特征在于,所述濾池內部結構設計有布水系統、承托層、濾頭、氣水反沖洗系統、風機、攔料柵,池體外設有進水口、出水口、氣管口以及反洗管路,濾池內濾料采用活性炭濾料和陶粒濾料。
說明書
一種造紙行業專有廢水處理裝置
技術領域
本實用新型涉及一種廢水處理裝置,具體是一種造紙行業專有廢水處理裝置。
背景技術
廢紙造紙是以廢板紙、廢報紙、廢書刊紙等為主要原料,生產多種規格的白板紙、箱板紙、瓦楞紙等產品。造紙廢水排放量與多種因素有關,目前我國以中小型企業居多,噸紙排水量一般在100~200立方米/t,最低已達到22立方米/t,最高超過250立方米/t。一般,企業規模越大、設備越先進、商品漿比例越高、管理越完善,噸紙排水量也就越低。在同等條件下,高檔紙噸產品排水量要高于低檔紙噸產品排水量。廢水水質濃度一般與噸紙排水量及污染物產生量有關,通常造紙廢水的COD(化學需氧量)在5000~15000mg/L范圍,廢紙造紙廢水中主要含有半纖維素、木質素、無機酸鹽、細小纖維、無機填料以及油墨、染料等污染物。木質素、半纖維素主要形成廢水的COD;細小纖維、無機填料等主要形成SS(固體懸浮物濃度);油墨、染料等主要形成色度及COD。這些污染物綜合反映出廢水的SS、COD指標均較高。COD則由非溶解性COD和溶解性COD兩部分組成,通常非溶解性COD占COD組成總量的大部分,當廢水中SS被去除時,絕大部分非溶解性COD同時被去除。因此,廢紙造紙廢水處理要解決的主要問題是去除SS和COD。
實用新型內容
本實用新型的目的在于提供一種造紙行業專有廢水處理裝置,以解決上述背景技術中提出的問題。
為實現上述目的,本實用新型提供如下技術方案:
一種造紙行業專有廢水處理裝置,包括格柵井、微濾機、均質調節池、斜管沉淀池、集水井、混凝氣浮機、緩沖水池、高效厭氧反應器、生物除磷系統、二沉池、中間水池、絮凝反應罐、濾池、污泥貯存池、污泥濃縮池、污泥泵和帶式壓濾機。所述格柵井的進口連接污水進水管,格柵井內的提升泵出口連接微濾機的進口,均質調節池的進口連接微濾機的出口,均質調節池內提升泵通過管道連接斜管沉淀池的進口,斜管沉淀池的出口與集水井的進口相連,混凝氣浮機外置增壓泵的進水管直接連接至集水井的池底,混凝氣浮機外置增壓泵的出水口通過管道與混凝氣浮機的進水口相連,混凝氣浮機的出口連接緩沖水池的進口;高效厭氧反應器的進口與緩沖水池內的提升泵相連,出口連接生物除磷系統進水口,二沉池的進水口通過管道連接生物除磷系統的出水口,二沉池的出水口通過管道與中間水池的進水口相連,絮凝反應罐的進口通過管道與中間水池內的提升泵相連,絮凝反應罐的出口連接濾池的進口;所述斜管沉淀池的靜壓排泥口、混凝氣浮機的排空口、高效厭氧反應器排泥口、二沉池的排泥口和絮凝反應罐的排泥口通過管道匯集進入污泥貯存池的進口,污泥濃縮池的進口連接污泥貯存池內污泥泵的出口,污泥濃縮池上清液回流口通過管道連接格柵井的進口;污泥濃縮池的出口連接污泥泵的進口,帶式壓濾機的進料泵進口通過管道混合器與污泥泵的出口連接。
作為本實用新型進一步的方案:所述格柵井內安裝有機械格柵和提升泵。
作為本實用新型進一步的方案:所述微濾機內安裝有濾網、濾篩和傳動裝置,微孔篩網固定在轉鼓型過濾設備上。
作為本實用新型進一步的方案:所述斜管沉淀池為平流式,由沉淀區、布水區、污泥區組成;斜管之間間距一般不小于50mm,斜管長一般在1.0-1.2m左右;斜管的上層應有 0.5-1.0m的水深,底部緩沖層高度為1.0m。斜管下為廢水分布區,一般高度不小于0.5m,布水區下部為污泥區,污泥區設置靜壓排泥口,排泥口通過閥門和管道與污泥貯存池進口連接。
作為本實用新型進一步的方案:混凝氣浮機集進水、混凝、分離、集水、出水于一體,主要有三大系統組成:溶氣系統、刮渣系統、電控系統,混凝氣浮機上部設置有出水口、排渣口,中部設置有回流口,下部設置有進水口、三個排空口,排空口通過閥門和管道與污泥貯池進口連接;內部結構設計有穩流室、分離室、反映室、溶氣釋放室,穩流室內有折板,溶氣釋放室與分離室于一個槽體,中間隔開。
作為本實用新型進一步的方案:所述高效厭氧反應器本體為兩個圓柱形罐體結構的組合,主罐反應室由一級三相分離器、二級三相分離器分隔為三部分,分別是流化床反應室、深度凈化反應室和沉淀區,反應室中部和上部的三相分離器、反應室上部和反應器頂部的氣液分離器通過固定支架與本體連接固定,三相分離器上部有沼氣收集管和沼氣提升管;氣液分離器上連接有沼氣提升管、沼氣排放管和外循環回流管,反應室上部的鋼、不銹鋼或鋼砼制的環形出水堰固定在本體上,環形出水堰上安裝出水管;反應室下部安裝有排泥管,通過閥門和管道與污泥貯池進口連接,反應室底部安裝有進水管,反應室內底布置有進水布水管和外循環布水管;反應器部分出水作為外循環水在混合罐內與主反應罐產生的氣體混合后通過外部循環提升泵進入主反應器內。
作為本實用新型進一步的方案:所述生物除磷系統設計有進水口、出水堰口、排空口、污泥回流口和混合液回流口,進氣口,系統內部安裝有混合液回流泵、污泥回流泵、潛水推流機、啟閉機、矩陣曝氣;系統外置鼓風機,風機的風管與生物除磷系統的進氣口相連。
作為本實用新型進一步的方案:所述二沉池為斜板沉淀池,設有進水口、出水口、靜壓排泥口,靜壓排泥口通過閥門和管道與污泥貯存池進口連接。
作為本實用新型進一步的方案:所述絮凝反應罐外置兩套加藥裝置,加藥裝置由攪拌機、加藥箱和計量泵組成,分別為PAC和PAM。
作為本實用新型進一步的方案:所述濾池內部結構設計有布水系統、承托層、濾頭、氣水反沖洗系統、風機、攔料柵,池體外設有進水口、出水口、氣管口以及反洗管路,濾池內濾料采用活性炭濾料和陶粒濾料。
與現有技術相比,本實用新型的有益效果是:該裝置工藝設計合理、系統穩定,出水達標,產生的顆粒污泥會帶來效益能有效降解水中致色物質、去除水中有機物的,污水可生化性好,運行成本低。







