申請日2016.05.27
公開(公告)日2016.12.21
IPC分類號C02F9/14; C02F103/32
摘要
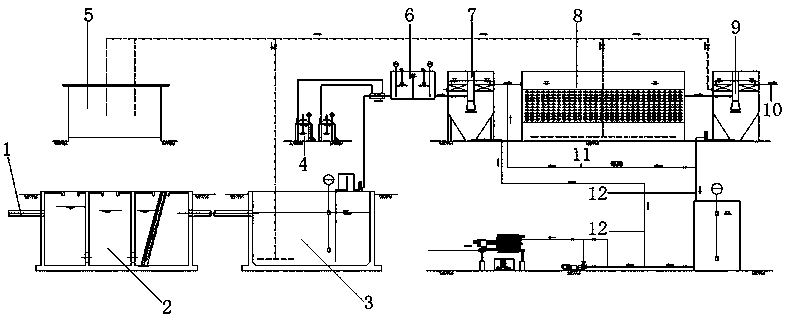
本實用新型公開了一種適用于食品廠的污水處理系統,包括進水管,所述進水管連接隔油池,所述隔油池通過管道連接調節池,所述調節池通過管道連接混凝沉淀池,所述調節池與混凝沉淀池之間的管道設置混凝反應器,所述混凝反應器通過管道連接加藥裝置,所述混凝沉淀池通過管道連接好氧生化池,所述好氧生化池通過管道連接二次沉淀池,所述二次沉淀池上設置達標排放口。本實用新型提供的一種適用于食品廠的污水處理系統,食品廠污水通過進水管進入隔油池,之后進入調節池,加藥處理后在混凝沉淀池內沉淀,之后經過好氧生化池處理,最后經過二次沉淀池處理后達標排出。
摘要附圖
權利要求書
1.一種適用于食品廠的污水處理系統,其特征在于:包括進水管,所述進水管連接隔油池,所述隔油池通過管道連接調節池,所述調節池通過管道連接混凝沉淀池,所述調節池與混凝沉淀池之間的管道設置混凝反應器,所述混凝反應器通過管道連接加藥裝置,所述混凝沉淀池通過管道連接好氧生化池,所述好氧生化池通過管道連接二次沉淀池,所述二次沉淀池上設置達標排放口。
2.如權利要求1所述的一種適用于食品廠的污水處理系統,其特征在于:所述隔油池內設置數個格柵。
3.如權利要求2所述的一種適用于食品廠的污水處理系統,其特征在于:還包括一回轉鼓風機,所述回轉鼓風機通過管道連接調節池和二次沉淀池。
4.如權利要求3所述的一種適用于食品廠的污水處理系統,其特征在于:所述好氧生化池和二次沉淀池的下方設置污泥回流管。
5.如權利要求4所述的一種適用于食品廠的污水處理系統,其特征在于:所述混凝沉淀池和二次沉淀池的下方設置濾液回流管,所述濾液回流管連接調節池。
說明書
一種適用于食品廠的污水處理系統
技術領域
本實用新型涉及污水處理系統,尤其涉及一種適用于食品廠的污水處理系統。
背景技術
食品廠的排水需要凈化處理,現有技術中缺少規范的食品廠排水處理體系,本實用新型提出了一種適用于食品廠的污水處理系統,在水處理過程中,原水經過一系列的處理后得到排放達標水,可排放到河道,也可用于灌溉,不會造成水資源的浪費。
實用新型內容
本實用新型的目的在于提供一種適用于食品廠的污水處理系統,具體結構為:
包括進水管,所述進水管連接隔油池,所述隔油池通過管道連接調節池,所述調節池通過管道連接混凝沉淀池,所述調節池與混凝沉淀池之間的管道設置混凝反應器,所述混凝反應器通過管道連接加藥裝置,所述混凝沉淀池通過管道連接好氧生化池,所述好氧生化池通過管道連接二次沉淀池,所述二次沉淀池上設置達標排放口。
上述的一種適用于食品廠的污水處理系統,其中:所述隔油池內設置數個格柵。
上述的一種適用于食品廠的污水處理系統,其中:還包括一回轉鼓風機,所述回轉鼓風機通過管道連接調節池和二次沉淀池。
上述的一種適用于食品廠的污水處理系統,其中:所述好氧生化池和二次沉淀池的下方設置污泥回流管。
上述的一種適用于食品廠的污水處理系統,其中:所述混凝沉淀池和二次沉淀池的下方設置濾液回流管,所述濾液回流管連接調節池。
本實用新型相對于現有技術具有如下有益效果:
本實用新型提供的一種適用于食品廠的污水處理系統,食品廠污水通過進水管進入隔油池,實現隔油處理,之后污水進入調節池、加藥處理后在混凝沉淀池內沉淀,之后經過好氧生化池處理,最后經過二次沉淀池沉淀處理后達標排出。


