生產全棉機織布的印染企業生產過程中產生的廢水主要包括退漿廢水、煮煉廢水、漂白廢水、絲光廢水、染色廢水和印花廢水等。退漿廢水水量較小,但含有大量的漿料和燒堿,其COD 可高達10 g/L,且堿度強、可生化性差。對含退漿廢水的高濃度印染廢水的混凝脫色處理一般采用硫酸亞鐵較為經濟有效,但硫酸亞鐵投加量較高,且易水解,產生大量的硫酸鹽,與用硫酸調節pH 時產生的硫酸根一起進入廢水后,造成廢水中硫酸鹽含量較高。而當使用厭氧法處理含硫酸鹽廢水時,硫酸鹽的存在會使厭氧系統出現產甲烷菌(MPB) 和硫酸鹽還原菌(SRB)競爭基質的現象,并且硫酸鹽還原產物(硫化物)對MPB 和SRB 有毒性抑制作用。硫酸鹽還原作用不僅降低了微生物的活性,而且嚴重時可使厭氧處理系統運行失敗,因而有必要對廢水的m(COD)∶m(SO42-)加以控制。雖然m(COD)∶m(SO42-)是影響厭氧過程的一個重要因素,但由于各研究者采用的基質和反應器類型等不同,因此得到的關于m(COD)∶m(SO42-)影響厭氧效果的結論不盡相同。
筆者采用復合式厭氧折流板反應器(HABR)對含硫酸鹽印染廢水進行處理,考察了不同m(COD)∶m(SO42-)對HABR 運行過程中COD 的去除率、硫酸鹽的還原率以及硫化物濃度變化、揮發性脂肪酸(VFA)濃度變化情況的影響。
1 實驗部分
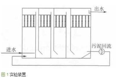
1.1 實驗裝置
本實驗所用HABR 由8 mm 厚的PVC 板制成,尺寸為1 800mm×350mm×1 300mm,有效容積750 L,反應器內分為4 個反應室,從第一格室下面用穿孔管均勻進水。后面三個格室每室由一個上流室和一個下流室組成,二者寬度比為4∶1。在通往上流室的擋板下部邊緣有45°導流板布水,便于將水送至上流室的中心,使泥水充分混合接觸,維持較高的污泥濃度,同時可避免水流進入時產生的沖擊,起到緩沖水流和均勻布水的作用,從而有利于對微生物固體的截留及微生物的生長,保證了運行效果。反應器上部增設組合雙環填料,使污泥與廢水接觸更充分。反應器內廢水溫度為30~40 ℃,水力停留時間(HRT)為24 h。實驗裝置如圖 1 所示。
1.2 實驗用水
實驗在廣東省揭陽市某全棉機織布印染廠廢水處理站進行,該印染廠產生的退漿廢水在與其他工序產生的廢水混合后,COD 仍高達5 g/L,pH 約13,在用硫酸調節pH 后,由硫酸亞鐵混凝脫色預處理并沉淀,出水水質見表 1。取其出水作為實驗用水。
1.3 分析測試方法
COD:重鉻酸鉀法〔9〕;SO42-濃度:鉻酸鋇光度法〔9〕;硫化物濃度:碘量法〔9〕;VFA:水蒸氣蒸餾法〔10〕。
1.4 實驗階段
為了探討不同m(COD)∶m(SO42-)對HABR 運行效能的影響,在系統運行穩定后,保持進水COD 為4 000 mg/L 不變(用葡萄糖調節),進水SO42-質量濃度從400 mg/L 逐步增加至8 000 mg/L(用硫酸鈉調節),使得m(COD)∶m(SO42-)分別為10、9、8、7、6、5、4、3、2、1、0.5。每次改變SO42-濃度時,連續10 d 測定反應器COD 去除率、SO42-去除率、出水硫化物濃度、VFA 濃度等指標,取各指標的最大值。
2 實驗結果與討論
2.1 m(COD)∶m(SO42-)對COD、SO42-去除率的影響
m(COD)∶m(SO42-)對COD、SO42-去除率的影響見圖 2。
從圖 2 可以看出,COD、硫酸鹽去除率均隨m(COD)∶m(SO42-)減小而降低。當m(COD)∶m(SO42-)為4~10 時,其對二者去除率的影響不大,其中COD去除率為82.61%~87.48%,硫酸鹽去除率為81.57%~91.19%。當m(COD)∶m(SO42-)=3 時,系統對COD 的去除率下降至76.65% ,對硫酸鹽去除率下降至71.83%。當m(COD)∶m(SO42-)=2 時,二者去除率均大幅下降,反應器運行效果變差,COD 去除率為23.39%,硫酸鹽去除率為30.24% 。當m(COD) ∶m(SO42-)=0.5 時,系統運行失敗,COD 去除率僅為9.56%,硫酸鹽去除率僅為13.25%。分析原因,可能是由于m(COD)∶m(SO42-)較高時,實質是硫酸鹽的質量濃度逐漸變小,充足的底物使硫酸鹽有較高的去除率;m(COD)∶m(SO42-)過低時,SO42-相對過剩,COD 還原能力不足,導致SRB 的生物活性降低,系統COD 去除率和硫酸鹽的還原去除率均下降〔11〕。
2.2 m(COD)∶m(SO42-)對出水硫化物濃度的影響
m(COD)∶m(SO42-)對出水硫化物濃度的影響見圖 3。
如圖 3 所示,隨著m(COD)∶m(SO42-)的降低,出水硫化物質量濃度逐漸升高。當m(COD)∶m(SO42-)為4~10 時,出水硫化物質量濃度隨著m(COD) ∶m(SO42-)減少增加較緩慢,m(COD)∶m(SO42-)=3時,硫化物質量濃度為143 mg/L,結合圖 2 可知,m(COD)∶m(SO42-) 為4 ~10 時,系統對COD、SO42-的去除效果較好,說明該范圍內產生的硫化物未對系統中的細菌產生明顯的抑制作用;m(COD)∶m(SO42-)≤3 時,出水硫化物質量濃度大幅增加,COD、硫酸鹽去除率均較低,說明硫化物對MPB 和SRB 均產生了較強的抑制作用,導致系統對COD、SO42-的去除效果較差。COD 去除率下降的幅度大于硫酸鹽去除率下降的幅度,說明產甲烷菌(MPB)對硫化物毒性的敏感性強于硫酸鹽還原菌(SRB),當硫化物增加到一定程度時MPB 先于SRB 受到抑制。
2.3 m(COD)∶m(SO42-)對VFA 濃度的影響
m(COD)∶m(SO42-)對VFA 濃度的影響如圖 4 所示。
由圖 4可見,隨著m(COD)∶m(SO42-)減小,出水VFA 質量濃度逐漸增加,當m(COD)∶m(SO42-)為4~10 時,出水VFA 質量濃度均較低,小于305 mg/L,此時,系統COD、硫酸鹽去除率均較高,運行效果良好。當m(COD)∶m(SO42-)從4 降至3 時,出水VFA質量濃度從305 mg/L 增至916 mg/L。當m(COD) ∶m(SO42-)降至2 時,出水VFA 質量濃度高達1 850mg/L,系統對COD 去除率較低,反應器運行效果較差,當m(COD)∶m(SO42-)=0.5 時,出水VFA 質量濃度為2 862 mg/L,系統運行失敗。具體參見http://www.bnynw.com更多相關技術文檔。
3 結論
采用復合式厭氧折流板反應器(HABR)處理含硫酸鹽印染廢水時,m(COD)∶m(SO42-)可作為HABR運行的重要參數之一。當m(COD)∶m(SO42-)>3時,反應器運行良好,對印染廢水的COD、硫酸鹽的去除率均較高,出水硫化物質量濃度小于143 mg/L;當m(COD)∶m(SO42-)≤3 時,反應器處理效能較差,COD、硫酸鹽去除率均急劇下降;當m(COD)∶m(SO42-)≤0.5 時,反應器運行失敗。因此,要想保持HABR 處理含硫酸鹽印染廢水有較高的COD、硫酸鹽去除率需保證m(COD)∶m(SO42-)>3。







