公布日:2023.10.13
申請日:2023.08.01
分類號:C02F3/30(2023.01)I
摘要
本發明公開了一種污泥發酵聯合多路徑厭氧氨氧化的裝置與方法,屬于污水處理領域。本發明包括一個堿性污泥發酵裝置和一個多路徑厭氧氨氧化裝置。本發明在連續流反應器中,通過投加污泥發酵物為短程反硝化與厭氧氨氧化的耦合提供碳源,實現高效脫氮和污泥減量。同時,該系統結合短程硝化、短程反硝化、內源短程反硝化為厭氧氨氧化提供充足的亞硝底物來源,保證系統中厭氧氨氧化菌的生長繁殖,該系統為厭氧氨氧化工藝的實際應用提供了可行的方案。

權利要求書
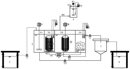
1.一種污泥發酵聯合多路徑厭氧氨氧化的裝置,其特征在于,包括順序相連的城市生活污水原水箱、連續流AOAO反應器、沉淀池與出水水箱;所述連續流AOAO反應器依次為厭氧區、第一好氧區、缺氧區與第二好氧區,厭氧區,第一好氧區,缺氧區與第二好氧區的體積比為1:1:2:1;還包括污泥堿性發酵罐,所述污泥堿性發酵罐與缺氧區相連。
2.根據權利要求1所述的一種污泥發酵聯合多路徑厭氧氨氧化的裝置,其特征在于,所述城市生活污水原水箱上設有進水泵,通過進水泵與所述連續流AOAO反應器連接。
3.根據權利要求1所述的一種污泥發酵聯合多路徑厭氧氨氧化的裝置,其特征在于,所述厭氧區設有厭氧攪拌裝置,所述缺氧區內部設有缺氧攪拌裝置,所述第一好氧區的底部與所述第二好氧區的底部均設有曝氣裝置,所述曝氣裝置包括氣泵、曝氣管、曝氣頭與pH/DO測定儀。
4.根據權利要求1所述的一種污泥發酵聯合多路徑厭氧氨氧化的裝置,其特征在于,所述第一好氧區與所述缺氧區內部均設有聚乙烯環厭氧氨氧化填料組件。
5.根據權利要求1所述的一種污泥發酵聯合多路徑厭氧氨氧化的裝置,其特征在于,所述污泥堿性發酵罐包括堿性發酵罐pH計、藥劑投加口、攪拌裝置和排泥口。
6.根據權利要求1所述的一種污泥發酵聯合多路徑厭氧氨氧化的裝置,其特征在于,還包括硝化液回流泵與污泥回流泵,所述第二好氧區通過硝化液回流泵回流至缺氧區;沉淀池的污泥通過污泥回流泵回流至厭氧區。
7.根據權利要求1-6任一項所述的一種污泥發酵聯合多路徑厭氧氨氧化的裝置,其特征在于,裝置的曝氣、攪拌過程均由在線監測系統和反饋控制系統控制完成。
8.一種污泥發酵聯合多路徑厭氧氨氧化的方法,其特征在于,采用權利要求1-7任一項所述的裝置,城市生活污水由城市生活污水原水箱通過進水泵進入厭氧區,厭氧區通過管道與第一好氧區相連接,第一好氧區污水流入缺氧區,污水從缺氧區流出后進入第二好氧區,之后流入沉淀池,經過沉淀后排出;第二好氧區設置硝化液回流的管道,通過硝化液回流泵回流至缺氧區;沉淀池設置污泥回流泵,通過污泥回流泵回流至厭氧區;沉淀池中排出的剩余污泥直接加入堿性發酵罐中進行缺氧攪拌,同時通過加入NaOH控制發酵罐內的pH為9-10,發酵完成后將發酵液泵入連續流AOAO反應器的缺氧區。
9.根據權利要求7所述的一種污泥發酵聯合多路徑厭氧氨氧化的方法,其特征在于,所述方法的包括以下步驟:1)工藝啟動:連續流AOAO反應器接種城市污水處理廠全程污泥,保持連續流AOAO反應器內的污泥濃度在3000-4000mg/L;分別在第一好氧區,缺氧區接種聚乙烯環厭氧氨氧化填料,填充比為30%;進水為城市生活污水;2)工藝穩定運行:2.1)控制污泥堿性發酵罐的溫度為30℃,將沉淀池排出的剩余污泥加入到污泥堿性發酵罐中,進泥結束后,污泥堿性發酵罐內的污泥濃度控制在8000-10000mg/L,通過向污泥堿性發酵罐中加入NaOH控制發酵罐的pH保持在9-10;2.2)多途徑AOAO反應器:城市生活污水進入厭氧區進行內碳源儲存,厭氧區出水通過管道進入第一好氧區,出水與污泥堿性發酵罐的發酵液一同進入缺氧區,在缺氧區停留時間為6-8h后進入第二好氧區,第二好氧區設置有硝化液回流,回流比為200%,第二好氧區的出水進入沉淀池內,一部分通過污泥回流泵進行回流,另一部分排入出水水箱。
發明內容
為了解決上述問題,本發明的目的在于提供一種污泥發酵聯合多路徑厭氧氨氧化實現城市污水深度脫氮的工藝,具體是工藝設置為厭氧-好氧-缺氧-好氧的運行模式且同時設置污泥回流和硝化液回流裝置。城市生活污水由生活污水箱流入厭氧區進行內碳源儲存同時反硝化去除污泥回流中的硝態氮,而后流入第一好氧區。在第一好氧區和缺氧區分別投加聚乙烯環厭氧氨氧化填料,填充比為30%。在好氧區厭氧氨氧化菌和硝化菌的共同作用下,系統在好氧區發生PN/A去除一部分氮素,而后流入缺氧區。設置一個堿性發酵罐,發酵罐體積占整個連續流裝置的20%,連續流中剩余污泥進入該發酵罐進行堿性發酵,發酵液和內回流一起進入缺氧區。在缺氧區,反硝化菌利用發酵液中的碳源以及厭氧區儲存的內碳源將硝態氮還原為亞硝態氮而后與發酵液引入的氨氮進行厭氧氨氧化反應,實現PD/A和EPD/A的耦合,剩余的氨氮進入后續的好氧區轉化為硝態氮。
為了實現上述目的,本發明采用以下技術方案:
本發明首先提供了一種污泥發酵聯合多路徑厭氧氨氧化的裝置,包括順序相連的城市生活污水原水箱、連續流AOAO反應器、沉淀池與出水水箱;所述連續流AOAO反應器依次為厭氧區、第一好氧區、缺氧區與第二好氧區,厭氧區,第一好氧區,缺氧區與第二好氧區的體積比為1:1:2:1;還包括污泥堿性發酵罐,所述污泥堿性發酵罐與缺氧區相連。
作為本發明的一種優選方案,所述城市生活污水原水箱上設有進水泵,通過進水泵與所述連續流AOAO反應器連接。
作為本發明的一種優選方案,所述厭氧區設有厭氧攪拌裝置,所述缺氧區內部設有缺氧攪拌裝置,所述第一好氧區的底部與所述第二好氧區的底部均設有曝氣裝置,所述曝氣裝置包括氣泵、曝氣管、曝氣頭與pH/DO測定儀。
作為本發明的一種優選方案,所述第一好氧區與所述缺氧區內部均設有聚乙烯環厭氧氨氧化填料組件。
作為本發明的一種優選方案,所述污泥堿性發酵罐包括堿性發酵罐pH計、藥劑投加口、攪拌裝置和排泥口。
作為本發明的一種優選方案,還包括硝化液回流泵與污泥回流泵,所述第二好氧區通過硝化液回流泵回流至缺氧區;沉淀池的污泥通過污泥回流泵回流至厭氧區。
作為本發明的一種優選方案,裝置的曝氣、攪拌過程均由在線監測系統和反饋控制系統控制完成。
本發明還提供了采用上述裝置的污泥發酵聯合多路徑厭氧氨氧化的方法,城市生活污水由城市生活污水原水箱通過進水泵進入厭氧區,厭氧區通過管道與第一好氧區相連接,第一好氧區污水流入缺氧區,污水從缺氧區流出后進入第二好氧區,之后流入沉淀池,經過沉淀后排出;第二好氧區設置硝化液回流的管道,通過硝化液回流泵回流至缺氧區;沉淀池設置污泥回流泵,通過污泥回流泵回流至厭氧區;沉淀池中排出的剩余污泥直接加入堿性發酵罐中進行缺氧攪拌,同時通過加入NaOH控制發酵罐內的pH為9-10,發酵完成后將發酵液泵入連續流AOAO反應器的缺氧區。
作為本發明的一種優選方案,1)工藝啟動:
連續流AOAO反應器接種城市污水處理廠全程污泥,保持連續流AOAO反應器內的污泥濃度在3000-4000mg/L;分別在第一好氧區,缺氧區接種聚乙烯環厭氧氨氧化填料,填充比為30%;進水為城市生活污水,COD:150-200mg/L,NH4+-N:60-80mg/L,C/N為2-3;硝化液回流比為200%,污泥回流比100%;控制第一好氧區溶解氧為0.8-1.5mg/L。
設置獨立的污泥堿性發酵罐,控制溫度為30℃,將沉淀池排出的剩余污泥通過藥劑投加口加入到發酵罐中,通過向發酵罐中加入NaOH控制發酵罐的pH保持在9-10。
2)工藝穩定運行:
2.1)污泥堿性發酵罐:控制污泥堿性發酵罐的溫度為30℃,將沉淀池排出的剩余污泥加入到發酵罐中,進泥結束后,發酵罐內的污泥濃度控制在8000-10000mg/L,通過向發酵罐中加入NaOH控制發酵罐的pH保持在9-10,當pH低于8.5時,加入NaOH進行調控。控制污泥在發酵罐中的停留時間為1-1.5d,發酵后的泥水混合物COD濃度大幅上升達到6000mg/L以上,此時將發酵罐中的泥水混合物與回流的硝化液通過排泥口流入到連續流AOAO反應器的缺氧區。
2.2)多途徑AOAO反應器:城市生活污水由生活污水箱通過進水泵進入厭氧區進行內碳源儲存,將原水中的碳源儲存為內碳源同時反硝化污泥回流中的硝態氮,厭氧區的水力停留時間控制在1-2h,而后流入第一好氧區。厭氧區出水通過管道進入第一好氧區,控制DO在1.0-1.5mg/L,此時氨氮被氧化的中間產物亞硝,由于第一好氧區接種了厭氧氨氧化填料,可以進行PN/A反應去除一部分氮素。污泥堿性發酵罐的體積占整個連續流裝置的20%,連續流中剩余污泥進入該發酵罐進行堿性發酵。
發酵液和內回流一起進入缺氧區,在缺氧區控制水力停留時間為6-8h進行充分的反應,短程反硝化菌利用發酵液中的碳源以及厭氧區儲存的內碳源將硝態氮還原為亞硝態氮而后與發酵液引入的氨氮以及好氧區未反應完全的氨氮進行厭氧氨氧化反應,分別利用內碳源以及發酵液產生的碳源將硝態氮進行還原,在缺氧區實現PD/A和EPD/A的耦合,同時發酵液引入的碳源也能強化反硝化的能力,實現系統的深度脫氮。而剩余的氨氮進入第二好氧區轉化為硝態氮,控制第二好氧區內的溶解氧為2-3mg/L,保證系統的硝化能力,避免出水中含有大量的氨氮。第二好氧區設置有硝化液回流,回流比為200%,第二好氧區出水進入沉淀池內,一部分通過污泥回流進行回流,另一部分排入出水水箱中。
最終出水水質為:COD:45-50mg/L,NH4+-N:1-3mg/L,NO2--N:0-1mg/L,NO3--N:5-7mg/L,TIN:6-10mg/L。
本發明提供的污泥發酵聯合多路徑厭氧氨氧化的工藝與傳統硝化反硝化工藝相比,具有以下優點:
1)剩余污泥中含有大量的有機物,經由厭氧發酵過程可以產生大量可供生物脫氮除磷的優質碳源——短鏈脂肪酸(SCFAs),將污泥發酵產物作為碳源應用于生物脫氮除磷系統,既解決了原水碳源不足的問題又能夠實現污泥的減量化、無害化和資源化;
2)聯合多種自養脫氮工藝,利用污泥發酵產生的碳源實現短程反硝化在實際廢水處理中的主流應用,聯合PN/A,PD/A,EPD/A,反硝化等多種脫氮途徑,實現了反硝化菌與厭氧氨氧化菌的協同脫氮作用從而實現系統深度脫氮;
3)本發明的裝置簡單、運行靈活,可操作性強,適用于已建成城市污水處理廠的升級改造,并且適用于低碳氮比的城市生活污水的處理。
4)本發明在連續流反應器中,通過投加污泥發酵物為短程反硝化與厭氧氨氧化的耦合提供碳源,實現高效脫氮和污泥減量。同時,該系統結合短程硝化、短程反硝化、內源短程反硝化為厭氧氨氧化提供充足的亞硝底物來源,保證系統中厭氧氨氧化菌的生長繁殖,該系統為厭氧氨氧化工藝的實際應用提供了可行的方案。
(發明人:高銳濤;李智行;鄭豪;李祖榮;朱文燦;涂航;江鑫;吳小剛;毛加)






