公布日:2024.04.19
申請日:2024.01.19
分類號:C02F9/00(2023.01)I;C02F1/52(2023.01)I;C01B25/45(2006.01)I;C02F1/00(2023.01)N;C02F7/00(2006.01)N;C02F3/30(2023.01)N;C02F101/10(2006.01)N;
C02F101/16(2006.01)N;C02F101/30(2006.01)N;C02F101/38(2006.01)N;C02F1/44(2023.01)N;C02F1/38(2023.01)N
摘要
本發明屬于高氨氮污水生物處理技術領域,具體涉及處理高濃污水的短程硝化/厭氧氨氧化-硫自養反硝化耦合鳥糞石法的脫氮除磷裝置、工藝。裝置:IC厭氧罐通過旋振篩連接一體式沉淀池一,一體式沉淀池一連接中溫超濾膜,中溫超濾膜通過除磷器連接接觸氧化系統,接觸氧化系統通過脫氮系統連接一體式沉淀池二,一體式沉淀池二通過硫自養反硝化器連接清水池。工藝包括:高濃污水廢水經過IC厭氧罐后進入旋振篩,再流入一體式沉淀池一,再進入中溫超濾膜,部分濃縮液回流至IC厭氧罐,清液進入除磷器,再進入接觸氧化系統,處理后進入脫氮系統和一體化沉淀池二,再進入硫自養反硝化器,過濾后的污水進入清水池。本發明能提高系統處理效率。

權利要求書
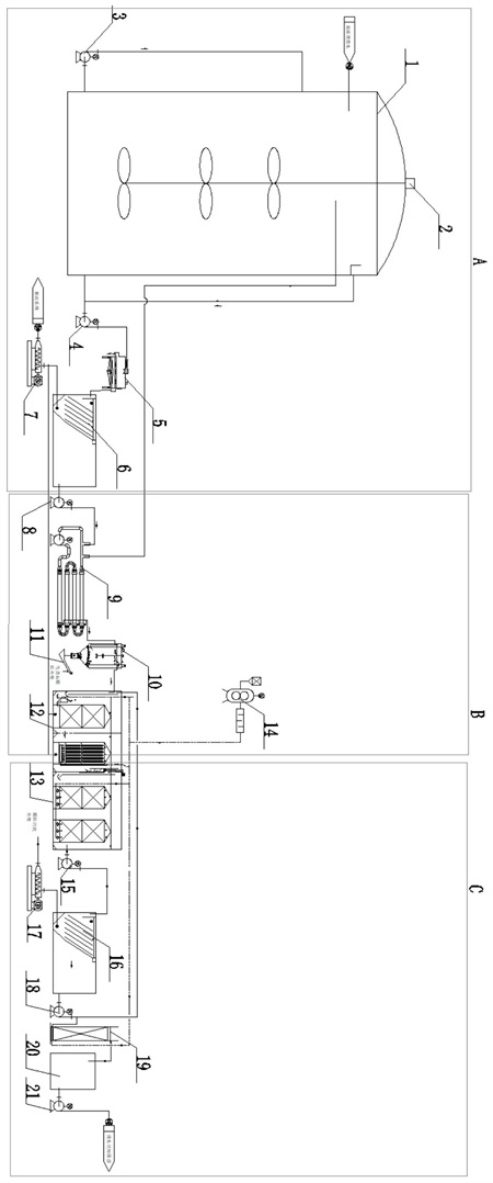
1.處理高濃污水的短程硝化/厭氧氨氧化-硫自養反硝化耦合鳥糞石法的脫氮除磷裝置,其特征在于,包括IC厭氧罐(1),IC厭氧罐(1)通過旋振篩(5)連接一體式沉淀池一(6),所述一體式沉淀池一(6)連接中溫超濾膜(9),所述中溫超濾膜(9)通過除磷器(10)連接接觸氧化系統(12),所述接觸氧化系統(12)通過脫氮系統(13)連接一體式沉淀池二(16),所述一體式沉淀池二(16)通過硫自養反硝化器(19)連接清水池(20);所述接觸氧化系統(12)包括接觸氧化池一(12-5),所述接觸氧化池一(12-5)用于缺氧反硝化,所述接觸氧化池一(12-5)連接所述接觸氧化池二(12-9),所述接觸氧化池二(12-9)為好氧生物接觸氧化池;所述脫氮系統(13)包括厭氧氨氧化池(13-5)。
2.根據權利要求1所述的處理高濃污水的短程硝化/厭氧氨氧化-硫自養反硝化耦合鳥糞石法的脫氮除磷裝置,其特征在于,所述IC厭氧罐(1)還連接所述中溫超濾膜(9),所述IC厭氧罐(1)還連接強制循環泵(3),所述IC厭氧罐(1)內設有中央攪拌器(2);所述一體式沉淀池一(6)還通過厭氧污泥泵(7)連接外部的脫泥系統。
3.根據權利要求1所述的處理高濃污水的短程硝化/厭氧氨氧化-硫自養反硝化耦合鳥糞石法的脫氮除磷裝置,其特征在于,所述除磷器(10)包括除磷罐(10-1)和攪拌器(10-2),所述攪拌器(10-2)底部設有槳葉,所述攪拌器(10-2)從所述除磷罐(10-1)頂部的中心位置穿入所述除磷罐(10-1)的反應區內;所述除磷罐(10-1)的底部設有錐斗,所述錐斗的下部連接氣動刀閘閥(10-9),所述氣動刀閘閥(10-9)連接分離器(11)。
4.根據權利要求3所述的處理高濃污水的短程硝化/厭氧氨氧化-硫自養反硝化耦合鳥糞石法的脫氮除磷裝置,其特征在于,所述除磷罐(10-1)的一側設有進料槽(10-5),所述除磷罐(10-1)的另一側設有出料口(10-6),所述除磷罐(10-1)還設有除磷藥劑口(10-4),所述除磷罐(10-1)內設有卸料板(10-7),所述卸料板(10-7)包括中間部和所述中間部兩端的活動板,所述中間部被卸料板活動螺栓(10-8)傾斜一定角度固定在所述除磷罐(10-1)上,兩端的所述活動板自然下垂和所述錐斗內壁接觸形成閉合狀態,所述活動板連接卸料板手動葫蘆(10-3)的一端,所述卸料板手動葫蘆(10-3)的另一端固定在所述除磷罐(10-1)外。
5.根據權利要求2所述的處理高濃污水的短程硝化/厭氧氨氧化-硫自養反硝化耦合鳥糞石法的脫氮除磷裝置,其特征在于,所述接觸氧化池一(12-5)包括進水槽(12-1)和旋流曝氣器(12-2)以及接觸氧化池出水孔(12-3),所述旋流曝氣器(12-2)用于提供微曝氣條件,所述接觸氧化池一(12-5)還包括鮑爾環填料模塊(12-4),所述鮑爾環填料模塊(12-4)用于放置填料,所述鮑爾環填料模塊(12-4)包括多組鮑爾環填料,多組鮑爾環填料之間通過上下模塊連接器(12-6)連接,所述接觸氧化池一(12-5)底部設有接觸氧化池排泥管(12-8);所述接觸氧化池二(12-9)包括彈性立體填料模塊(12-10),所述彈性立體填料模塊(12-10)包括多組彈性立體填料,多組所述彈性立體填料之間也通過上下模塊連接器(12-6)連接,所述彈性立體填料模塊(12-10)的下方設有納米曝氣管(12-7),所述接觸氧化池二(12-9)底部也設有所述接觸氧化池排泥管(12-8),所述接觸氧化池排泥管(12-8)也通過所述厭氧污泥泵(7)連接外部的脫泥系統。
6.根據權利要求1所述的處理高濃污水的短程硝化/厭氧氨氧化-硫自養反硝化耦合鳥糞石法的脫氮除磷裝置,其特征在于,所述接觸氧化池二(12-9)還包括接觸氧化池污泥分離槽(12-12),所述接觸氧化池污泥分離槽(12-12)內設有在線儀表探頭(12-11),所述在線儀表探頭(12-11)和在線檢測儀器以及曝氣風機(14)聯鎖控制。
7.根據權利要求1所述的處理高濃污水的短程硝化/厭氧氨氧化-硫自養反硝化耦合鳥糞石法的脫氮除磷裝置,其特征在于,所述厭氧氨氧化池(13-5)內設有多組填料裝置,每組填料裝置包括上部厭氧氨氧化填料模塊(13-4)和下部厭氧氨氧化填料模塊(13-3),所述上部厭氧氨氧化填料模塊(13-4)和所述下部厭氧氨氧化填料模塊(13-3)之間用上下填料膜塊連接器(13-6)連接,所述填料裝置底部還設有微孔曝氣盤(13-2),所述脫氮系統(13)還包括厭氧氨氧化池出水孔(13-7)和厭氧氨氧化池進水孔(13-1)。
8.根據權利要求1所述的處理高濃污水的短程硝化/厭氧氨氧化-硫自養反硝化耦合鳥糞石法的脫氮除磷裝置,其特征在于,所述IC厭氧罐(1)通過厭氧出料泵(4)連接所述旋振篩(5),所述一體式沉淀池一(6)通過沉淀出料泵一(8)連接所述中溫超濾膜(9),所述中溫超濾膜(9)為超濾膜系統,所述脫氮系統(13)通過厭氧氨氧化出料泵(15)連接所述一體式沉淀池二(16),所述一體式沉淀池二(16)還連接厭氧氨氧化顆粒污泥泵(17),所述一體式沉淀池二(16)還通過沉淀出料泵二(18)連接所述硫自養反硝化器(19),所述清水池(20)還連接清水泵(21),所述硫自養反硝化器(19)還連接所述接觸氧化系統(12),所述一體式沉淀池二(16)還連接所述接觸氧化系統(12)。
9.處理高濃污水的短程硝化/厭氧氨氧化-硫自養反硝化耦合鳥糞石法的脫氮除磷工藝,其特征在于,在該工藝中使用權利要求1~8任一項所述處理高濃污水的短程硝化/厭氧氨氧化-硫自養反硝化耦合鳥糞石法的脫氮除磷裝置,該工藝包括如下步驟,高濃污水/高濃度廢水經過IC厭氧罐(1)發酵后進入旋振篩(5)去除大顆粒物料,得到去除大顆粒物料的液相,所述去除大顆粒物料的液相流入所述一體式沉淀池一(6)去除細小懸浮物,得到分離后的沉淀清液和分離后的污泥,所述分離后的污泥進入外部的脫泥系統,所述分離后的沉淀清液進入所述中溫超濾膜(9)進行固液分離,得到清液和部分濃縮液,所述部分濃縮液回流至IC厭氧罐(1),所述清液進入所述除磷器(10)進行除磷,生成鳥糞石結晶體,還得到除磷后的污水,所述除磷后的污水進入接觸氧化系統(12)進行短程硝化,并去除有機質及懸浮物,多余的污泥進入外部的脫泥系統,處理后的污水進入所述脫氮系統(13)和所述一體化沉淀池二(16)脫氮,再進入所述硫自養反硝化器(19)進行硫自養反硝化脫余氮,過濾后的污水進入所述清水池(20);所述除磷器(10)內裝有填料一,所述填料一包括網狀聚氨酯填料、網狀海綿除磷脫氮填料中的至少一種,所述網狀海綿除磷脫氮填料的原料包括以下重量份的組分:聚醚多元醇70~100份、水3~6份、催化劑1~2份、表面活性劑1~2份、填充劑2~5份、鎂鹽5~20份、硫鐵礦粉5~20份;所述網狀海綿除磷脫氮填料的制備方法包括以下步驟:按比例將原料攪拌,制得混合預試劑;將所述混合預試劑進行發泡,得到所述網狀海綿除磷脫氮填料。
10.根據權利要求9所述的處理高濃污水的短程硝化/厭氧氨氧化-硫自養反硝化耦合鳥糞石法的脫氮除磷工藝,其特征在于,所述催化劑包括胺類催化劑,所述胺類催化劑包括三乙胺、亞乙基二胺、醇胺中的至少一種;所述表面活性劑包括開孔劑、硅油中的至少一種,所述開孔劑包括脂肪酸堿金屬鹽、煤油、礦物油中的至少一種,所述硅油包括硅油L580;所述填充劑包括輕質碳酸鈣、硅石灰、膨潤土中的至少一種,所述填充劑的粒徑為200~500目;所述鎂鹽包括氫氧化鎂、氯化鎂、硫酸鎂中的至少一種,所述鎂鹽的粒徑為200~500目;所述硫鐵礦粉的粒徑為200~500目,所述網狀海綿除磷脫氮填料的制備方法包括以下步驟:按比例將原料在1000~2000r/min條件下攪拌20~40min,制得混合預試劑;將所述混合預試劑進行發泡,將高壓反應釜升溫至150±5℃后,將混合預試劑與40~60份的甲苯二異氰酸酯,在3000~4000r/min條件下攪拌5~8s,迅速倒入至已升溫至150±5℃的高發反應釜,并將二氧化碳加壓3~7MPa后通入高壓反應釜中,保壓30~60min后,將高壓反應釜內的壓力瞬間減壓釋放獲得初期網狀海綿除磷脫氮填料,冷卻至常溫,將初期網狀海綿除磷脫氮填料剪切成邊長20~30mm的正方形填料,得到所述網狀海綿除磷脫氮填料;所述IC厭氧罐(1)的運行指標包括,進料負荷OLR:5~10kg/m3·d,pH:7.2~8.0,揮發性脂肪酸VFA:500~1000mg/L,堿度:25000~30000mg/L,水力停留時間HRT:30~45d,NH3-N:2000~2500mg/L,TN:2500~3000mg/L,COD:2500~6000mg/L,TS:1.5%~2.0%,VS:25%~35%,溫度:55℃;噸進水沼氣量:80~110m3/h,CH4:68%~70%,CO:29.6%~31.7%,O2:0,H2S:0.3%~0.4%;所述中溫超濾膜(9)的運行指標包括:超濾產水率:50%~70%,產水通量:60~110LMH,運行溫度:50~60℃,管道流程4~6m/s,出水SS7.2,運行溫度控制在30℃~37℃;出水硝態氮:70mg/L;堿度:無要求;pH>6-9;反應器:直徑×高度=0.5m*2.5m,其中填料高度2m;水利停留時間:4-6h;容積負荷:0.8~1.3kgN/m3·d;進水形式:升流式;反沖洗:采取升流式高速水流反沖洗的方式,1-2月反沖洗一次,反沖洗強度為7~10L/m2·s,沖洗時間是3~5min。
發明內容
本發明的第一個目的是提供處理高濃污水的短程硝化/厭氧氨氧化-硫自養反硝化耦合鳥糞石法的脫氮除磷裝置,本發明的第二個目的是提供處理高濃污水的短程硝化/厭氧氨氧化-硫自養反硝化耦合鳥糞石法的脫氮除磷工藝,本發明能提高系統處理效率,適用于對低碳氮比、總磷高的高濃污水進行脫氮除磷。
本發明提供一種處理高濃污水的短程硝化/厭氧氨氧化-硫自養反硝化耦合鳥糞石法的脫氮除磷裝置,包括IC厭氧罐,IC厭氧罐通過旋振篩連接一體式沉淀池一,所述一體式沉淀池一通過中溫超濾膜,所述中溫超濾膜通過除磷器連接接觸氧化系統,所述接觸氧化系統通過脫氮系統連接一體式沉淀池二,所述一體式沉淀池二通過硫自養反硝化器連接清水池;所述接觸氧化系統包括接觸氧化池一,所述接觸氧化池一用于缺氧反硝化,所述接觸氧化池一連接所述接觸氧化池二,所述接觸氧化池二為好氧生物接觸氧化池;所述脫氮系統包括厭氧氨氧化池。
于本發明一實施例中,所述IC厭氧罐還連接所述中溫超濾膜,所述IC厭氧罐還連接強制循環泵,所述IC厭氧罐內設有中央攪拌器;所述一體式沉淀池一還通過厭氧污泥泵連接外部的脫泥系統。
于本發明一實施例中,所述除磷器包括除磷罐和攪拌器,所述攪拌器底部設有槳葉,所述攪拌器從所述除磷罐頂部的中心位置穿入所述除磷罐的反應區內;所述除磷罐的底部設有錐斗,所述錐斗的下部連接氣動刀閘閥,所述氣動刀閘閥連接分離器。
于本發明一實施例中,所述除磷罐的一側設有進料槽,所述除磷罐的另一側設有出料口,所述除磷罐還設有除磷藥劑口,所述除磷罐內設有卸料板,所述卸料板包括中間部和所述中間部兩端的活動板,所述中間部被卸料板活動螺栓傾斜一定角度固定在所述除磷罐上,兩端的所述活動板自然下垂和所述錐斗內壁接觸形成閉合狀態,所述活動板連接卸料板手動葫蘆的一端,所述卸料板手動葫蘆的另一端固定在所述除磷罐外。
于本發明一實施例中,所述接觸氧化池一包括進水槽和旋流曝氣器以及接觸氧化池出水孔,所述旋流曝氣器用于提供微曝氣條件,所述接觸氧化池一還包括鮑爾環填料模塊,所述鮑爾環填料模塊用于放置填料,所述鮑爾環填料模塊包括多組鮑爾環填料,多組鮑爾環填料之間通過上下模塊連接器連接,所述接觸氧化池一底部設有接觸氧化池排泥管;所述接觸氧化池二包括彈性立體填料模塊,所述彈性立體填料模塊包括多組彈性立體填料,多組所述彈性立體填料之間也通過上下模塊連接器連接,所述彈性立體填料模塊的下方設有納米曝氣管,所述接觸氧化池二底部也設有所述接觸氧化池排泥管,所述接觸氧化池排泥管也通過所述厭氧污泥泵連接外部的脫泥系統。
于本發明一實施例中,所述接觸氧化池二還包括接觸氧化池污泥分離槽,所述接觸氧化池污泥分離槽內設有在線儀表探頭,所述在線儀表探頭和在線檢測儀器以及曝氣風機聯鎖控制。
于本發明一實施例中,所述厭氧氨氧化池內設有多組填料裝置,每組填料裝置包括上部厭氧氨氧化填料模塊和下部厭氧氨氧化填料模塊,所述上部厭氧氨氧化填料模塊和所述下部厭氧氨氧化填料模塊之間用上下填料膜塊連接器連接,所述填料裝置底部還設有微孔曝氣盤,所述脫氮系統還包括厭氧氨氧化池出水孔和厭氧氨氧化池進水孔。
于本發明一實施例中,所述IC厭氧罐通過厭氧出料泵連接所述旋振篩,所述一體式沉淀池一通過沉淀出料泵一連接所述中溫超濾膜,所述中溫超濾膜為超濾膜系統,所述脫氮系統通過厭氧氨氧化出料泵連接所述一體式沉淀池二,所述一體式沉淀池二還連接厭氧氨氧化顆粒污泥泵,所述一體式沉淀池二還通過沉淀出料泵二連接所述硫自養反硝化器,所述清水池還連接清水泵,所述硫自養反硝化器還連接所述接觸氧化系統,所述一體式沉淀池二還連接所述接觸氧化系統。
本發明還提供一種處理高濃污水的短程硝化/厭氧氨氧化-硫自養反硝化耦合鳥糞石法的脫氮除磷工藝,在該工藝中使用所述處理高濃污水的短程硝化/厭氧氨氧化-硫自養反硝化耦合鳥糞石法的脫氮除磷裝置,該工藝包括如下步驟,高濃污水/高濃度廢水經過IC厭氧罐發酵后進入旋振篩去除大顆粒物料,得到去除大顆粒物料的液相,所述去除大顆粒物料的液相流入所述一體式沉淀池一去除細小懸浮物,得到分離后的沉淀清液和分離后的污泥,所述分離后的污泥進入外部的脫泥系統,所述分離后的沉淀清液進入所述中溫超濾膜進行固液分離,得到清液和部分濃縮液,所述部分濃縮液回流至IC厭氧罐,所述清液進入所述除磷器進行除磷,生成鳥糞石結晶體,還得到除磷后的污水,所述除磷后的污水進入接觸氧化系統進行短程硝化,并去除有機質及懸浮物,多余的污泥進入外部的脫泥系統,處理后的污水進入所述脫氮系統和所述一體化沉淀池二脫氮,再進入所述硫自養反硝化器進行硫自養反硝化脫余氮,過濾后的污水進入所述清水池。
所述除磷器內裝有填料一,所述填料一包括網狀聚氨酯填料、網狀海綿除磷脫氮填料中的至少一種,所述網狀海綿除磷脫氮填料的原料包括以下重量份的組分:聚醚多元醇70~100份、水3~6份、催化劑1~2份、表面活性劑1~2份、填充劑2~5份、鎂鹽5~20份、硫鐵礦粉5~20份;所述網狀海綿除磷脫氮填料的制備方法包括以下步驟:按比例將原料攪拌,制得混合預試劑;將所述混合預試劑進行發泡,得到所述網狀海綿除磷脫氮填料。
于本發明一實施例中,所述催化劑包括胺類催化劑,所述胺類催化劑包括三乙胺、亞乙基二胺、醇胺中的至少一種;所述表面活性劑包括開孔劑、硅油中的至少一種,所述開孔劑包括脂肪酸堿金屬鹽、煤油、礦物油中的至少一種,所述硅油包括硅油L580;所述填充劑包括輕質碳酸鈣、硅石灰、膨潤土中的至少一種,所述填充劑的粒徑為200~500目;所述鎂鹽包括氫氧化鎂、氯化鎂、硫酸鎂中的至少一種,所述鎂鹽的粒徑為200~500目;所述硫鐵礦粉的粒徑為200~500目,所述網狀海綿除磷脫氮填料的制備方法包括以下步驟:按比例將原料在1000~2000r/min條件下攪拌20~40min,制得混合預試劑;將所述混合預試劑進行發泡,將高壓反應釜升溫至150±5℃后,將混合預試劑與40~60份的甲苯二異氰酸酯,在3000~4000r/min條件下攪拌5~8s,迅速倒入至已升溫至150±5℃的高發反應釜,并將二氧化碳加壓3~7MPa后通入高壓反應釜中,保壓30~60min后,將高壓反應釜內的壓力瞬間減壓釋放獲得初期網狀海綿除磷脫氮填料,冷卻至常溫,將初期網狀海綿除磷脫氮填料剪切成邊長20~30mm的正方形填料,得到所述網狀海綿除磷脫氮填料。
于本發明一實施例中,所述IC厭氧罐的運行指標包括,進料負荷OLR:5~10kg/m3·d,pH:7.2~8.0,揮發性脂肪酸VFA:500~1000mg/L,堿度:25000~30000mg/L,水力停留時間HRT:30~45d,NH3-N:2000~2500mg/L,TN:2500~3000mg/L,COD:2500~6000mg/L,TS:1.5%~2.0%,VS:25%~35%,溫度:55℃;噸進水沼氣量:80~110m3/h,CH4:68%~70%,CO:29.6%~31.7%,O2:0,H2S:0.3%~0.4%;所述中溫超濾膜的運行指標包括:超濾產水率:50%~70%,產水通量:60~110LMH,運行溫度:50~60℃,管道流程4~6m/s,出水SS7.2,運行溫度控制在30℃~37℃;出水硝態氮:70mg/L;堿度:無要求;pH>6-9;反應器:直徑×高度=0.5m*2.5m,其中填料高度2m;水利停留時間:4-6h;容積負荷:0.8~1.3kgN/m3·d;進水形式:升流式;反沖洗:采取升流式高速水流反沖洗的方式,1-2月反沖洗一次,反沖洗強度為7~10L/(m2·s),沖洗時間是3~5min。
需要說明的是,在本發明中,兩級A/O生物處理系統利用釋磷菌和聚磷菌先釋放后吸收至污泥中,通過排泥實現除磷目的。當污水中有足夠的有機碳源時,主要采用生物法除磷能去除一部分,主流工藝采用氣浮加藥除磷,這種方式運行成本高,磷資源不能利用,產泥量大。在沼液中游離氨氮濃度高、總磷濃度低,本發明利用鳥糞石結晶原理,通過投加鎂鹽將控制Mg:P質量在1.1:1~1.5:1時,在破解鳥糞石結晶的鎂鹽限制因素后出水總磷降到10mg/L以下,通過分離回收鳥糞石結晶體實現資源化利用。
兩級A/O生物處理技術存在成本高,脫氮效率低的問題,為實現污水處理的可持續化發展,本發明利用低能耗高效的短程硝化生物接觸氧化池+厭氧氨氧化池+硫自養反硝化組合工藝進行解決。在沼液經過固液分離后,進入生物接觸氧化池利用異養菌COD,同時在微氧環境下氨氧化細菌將NH4+-N轉化為NO2--N,曝氣量與在線NH4+-N、NO2--N及NO3--N檢測分析儀進行智能聯鎖控制,當氨氮達到“低谷點”時,為將系統控制在短程硝化階段減少羅茨風機曝氣頻率。短程硝化出水為為厭氧氨氧化過程提供NH4+-N和NO2--N,厭氧氨氧化過程中會產生10%左右的NO3--N,后端基于硫自養反硝菌利用CO2碳源進行脫總氮,實現出水總氮總磷達標排放。
本發明的有益效果是:1)針對廚余/餐廚垃圾中含有豐富的P元素,通過除磷反應器后將磷元素轉化成鳥糞石,鳥糞石中磷元素含量占比60%以上,鳥糞石可作為一種磷肥生產的原材料或緩釋肥料,用于農作物生長。實現餐廚廢水變廢為寶,實現資源化,同時從根本上解決了后端工藝管道鳥糞石結垢問題。
2)通過一體式沉淀池+超濾膜對沼液進行固液分離,固體回流至厭氧系統,進一步將有機質轉化為沼氣,有機質轉化率提高到5%~10%。采用膜分離方式,相對常規投加絮凝劑進行離心機分離,運行成本至少節省20元/噸。同時避免了投加絮凝劑藥劑對后續污水生化系統的影響。膜產水的SS
(發明人:盧艷娟;王珍寶;劉鑫;朱仕亮;穆子霄;張長江;何金玲;高云霄)






